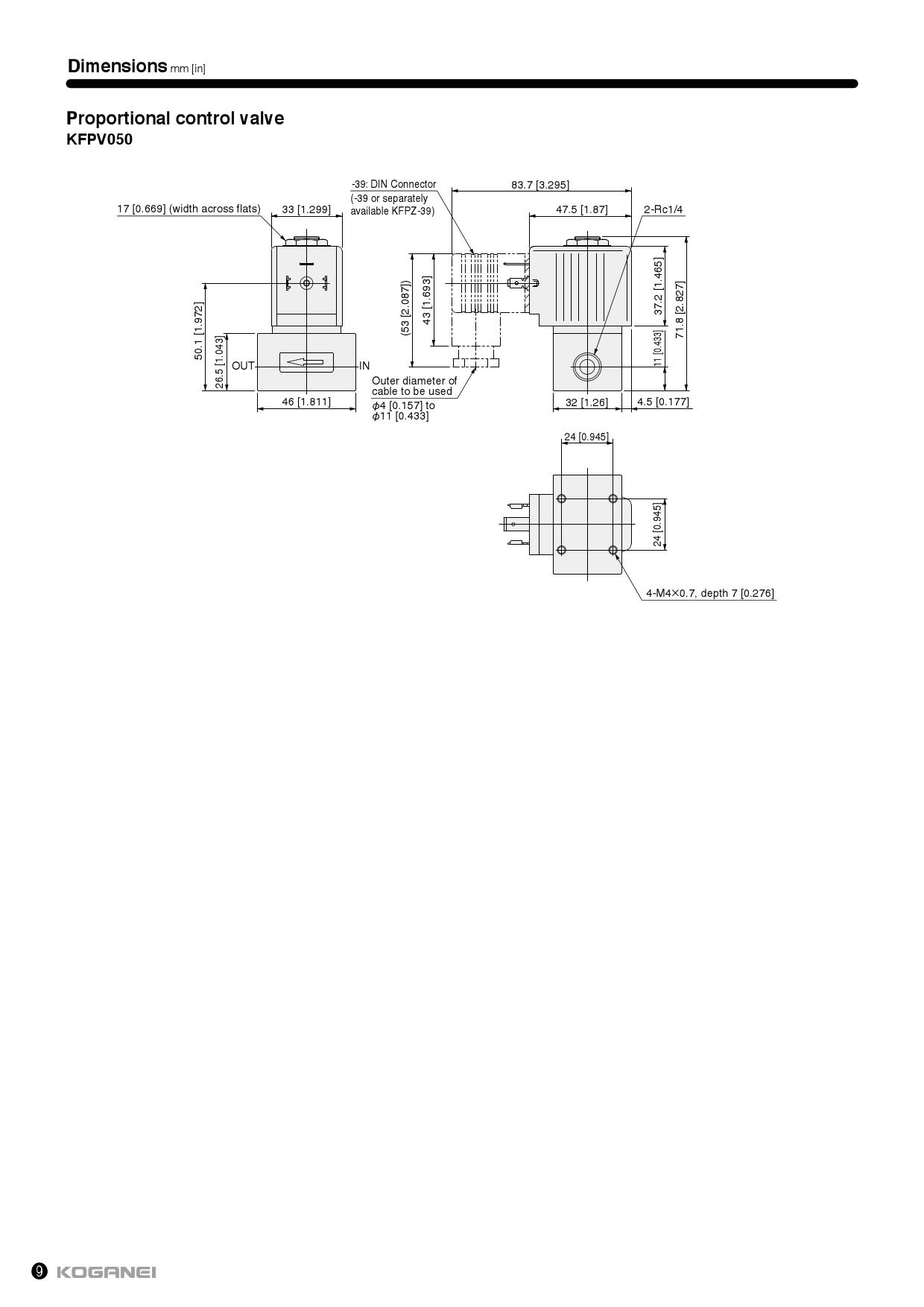
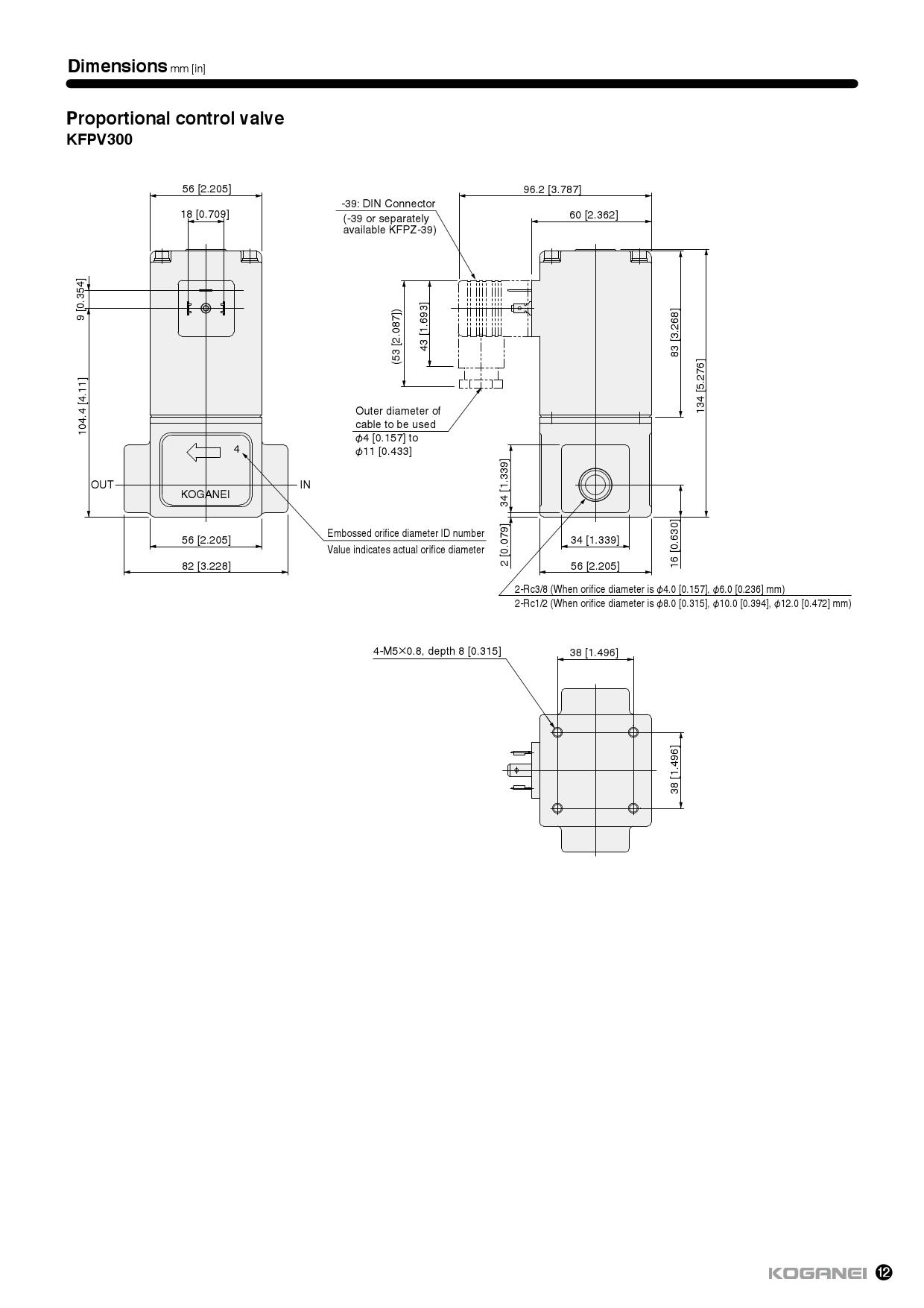
Proportional control valve,KVPF
  • Catalog
  •  
  •  
  •  
CAD Download