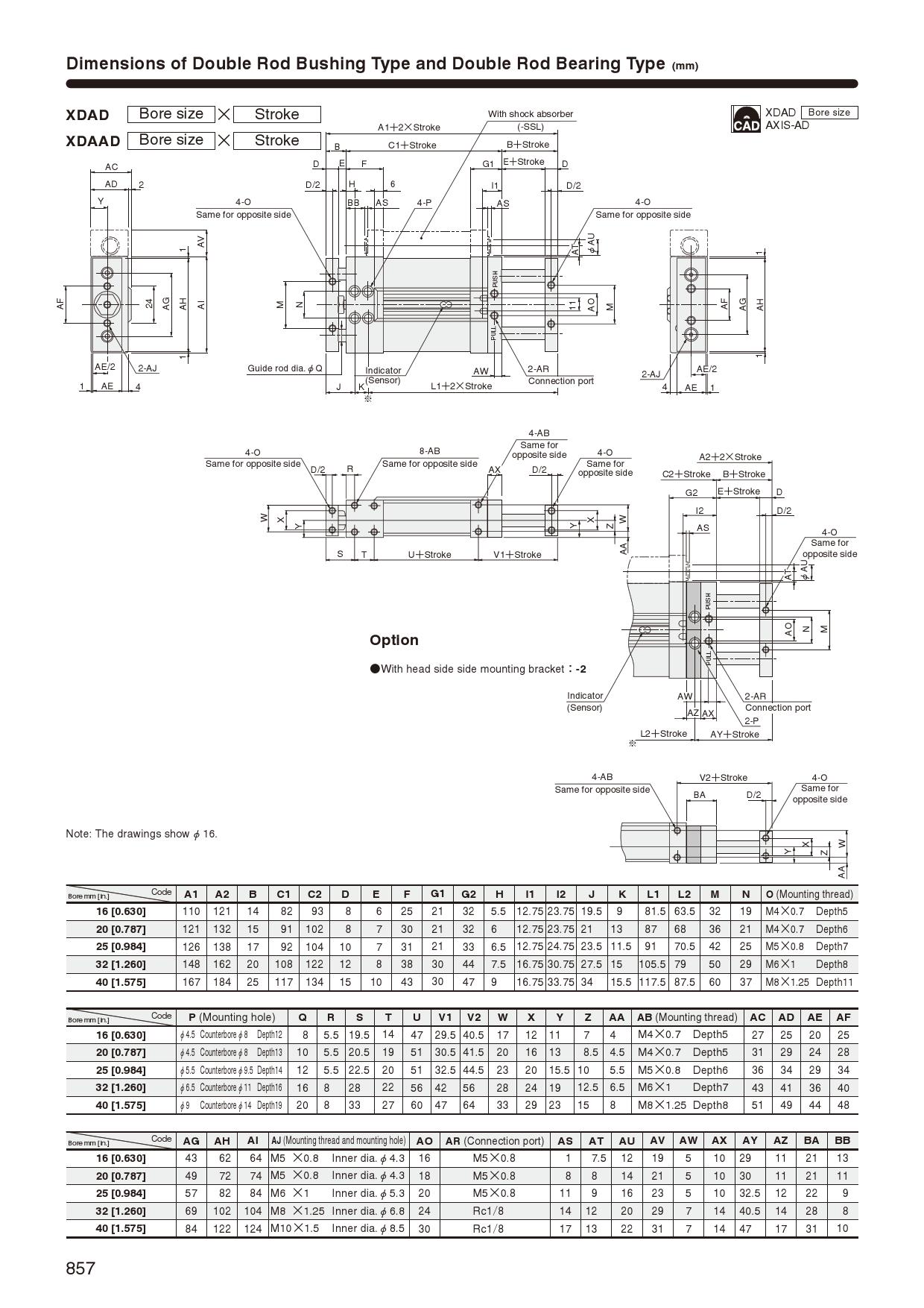
Axis,XDAD,double rod,double rod,bushing
  • Catalog
  • Spec / Format
  •  
  •  
Double acting double rod bushing type.
CAD Download