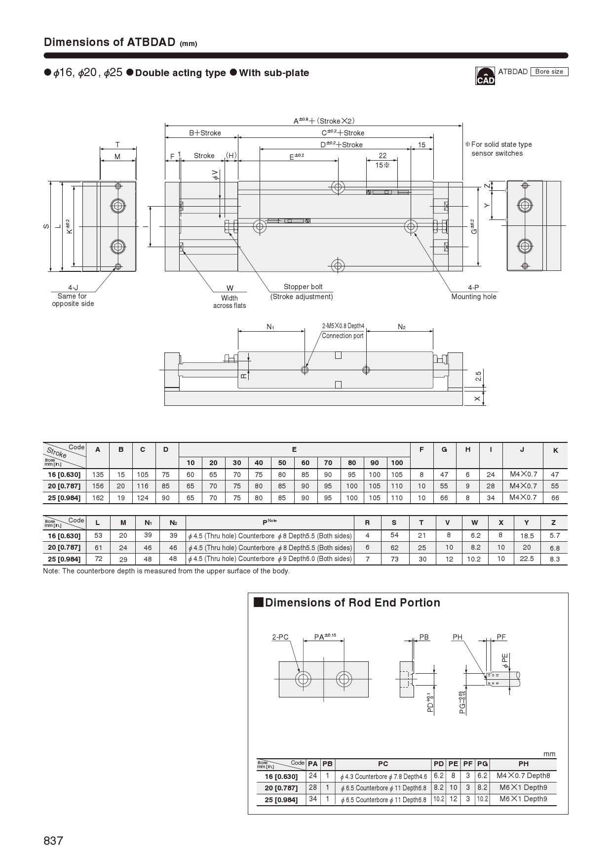
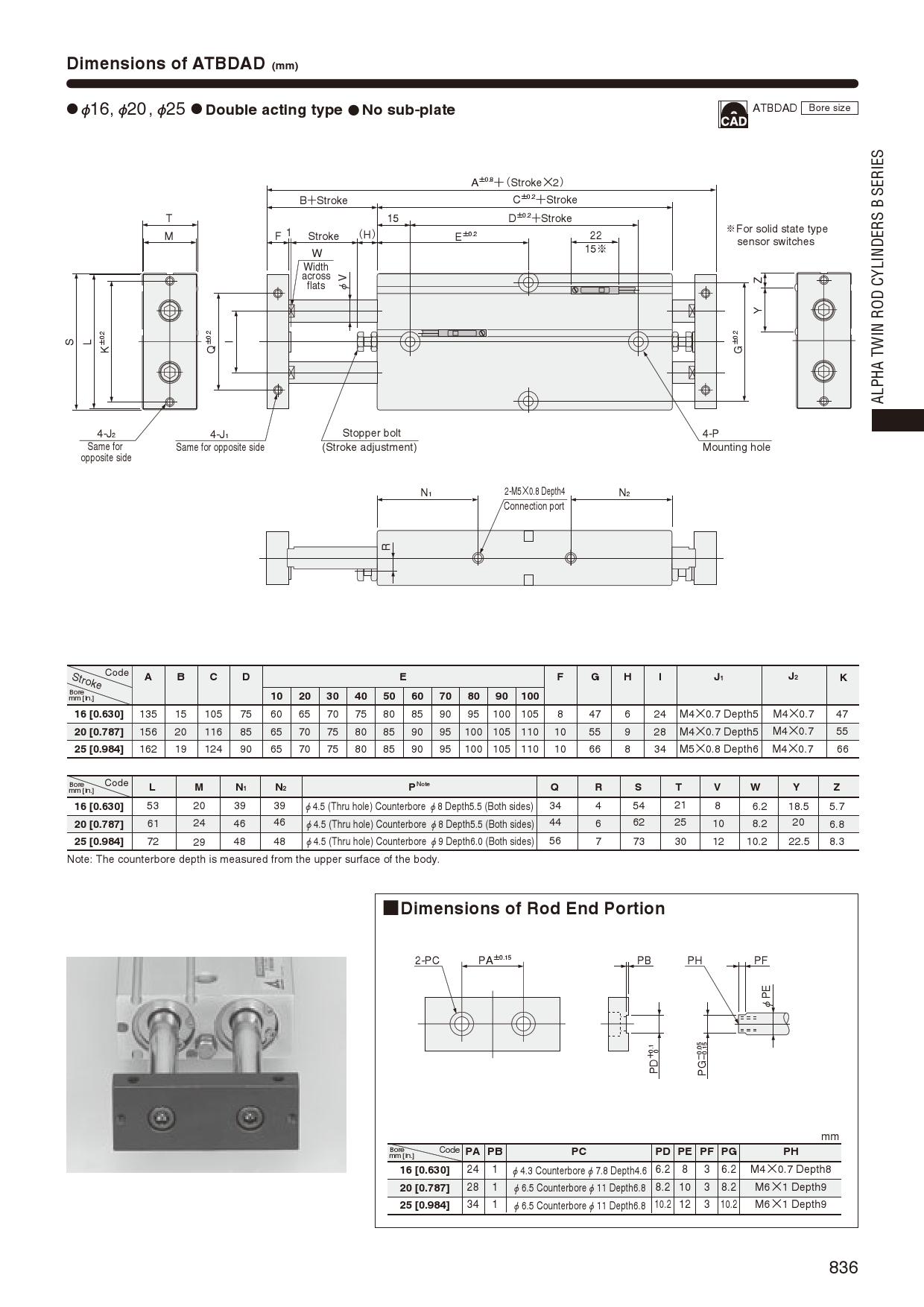
Alpha,twin rod cylinder,ATBDAD
  • Catalog
  • Spec / Format
  •  
  •  
Double acting double rod type
CAD Download