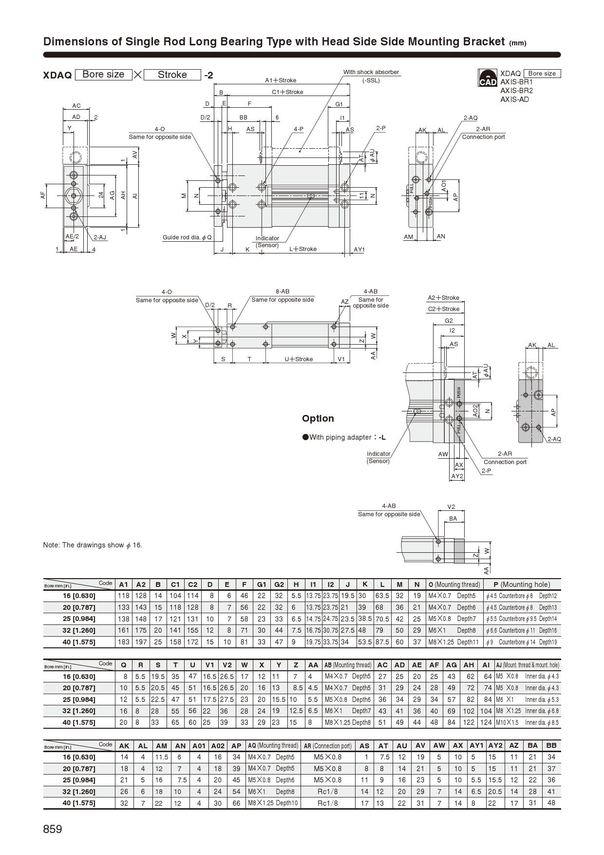
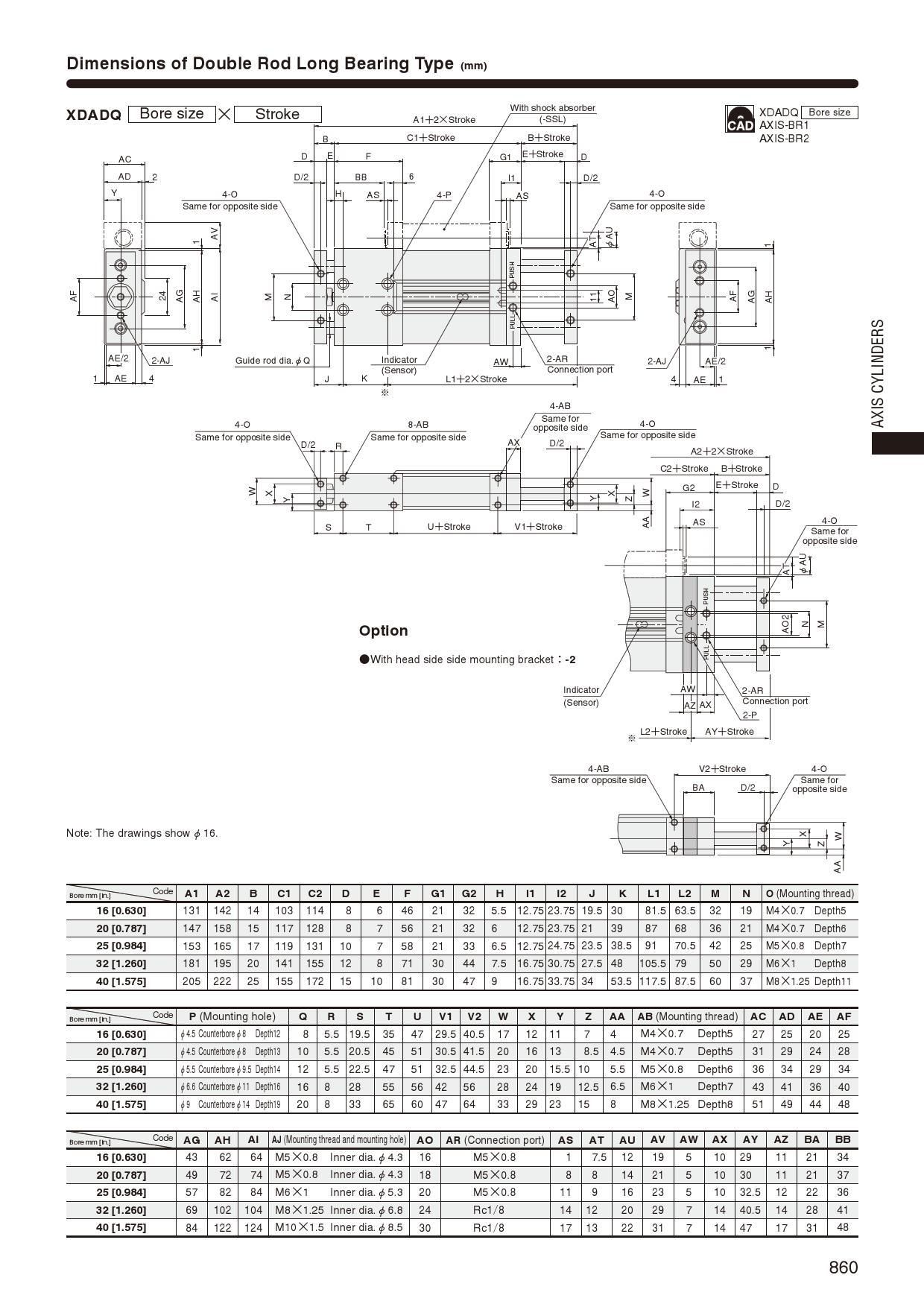
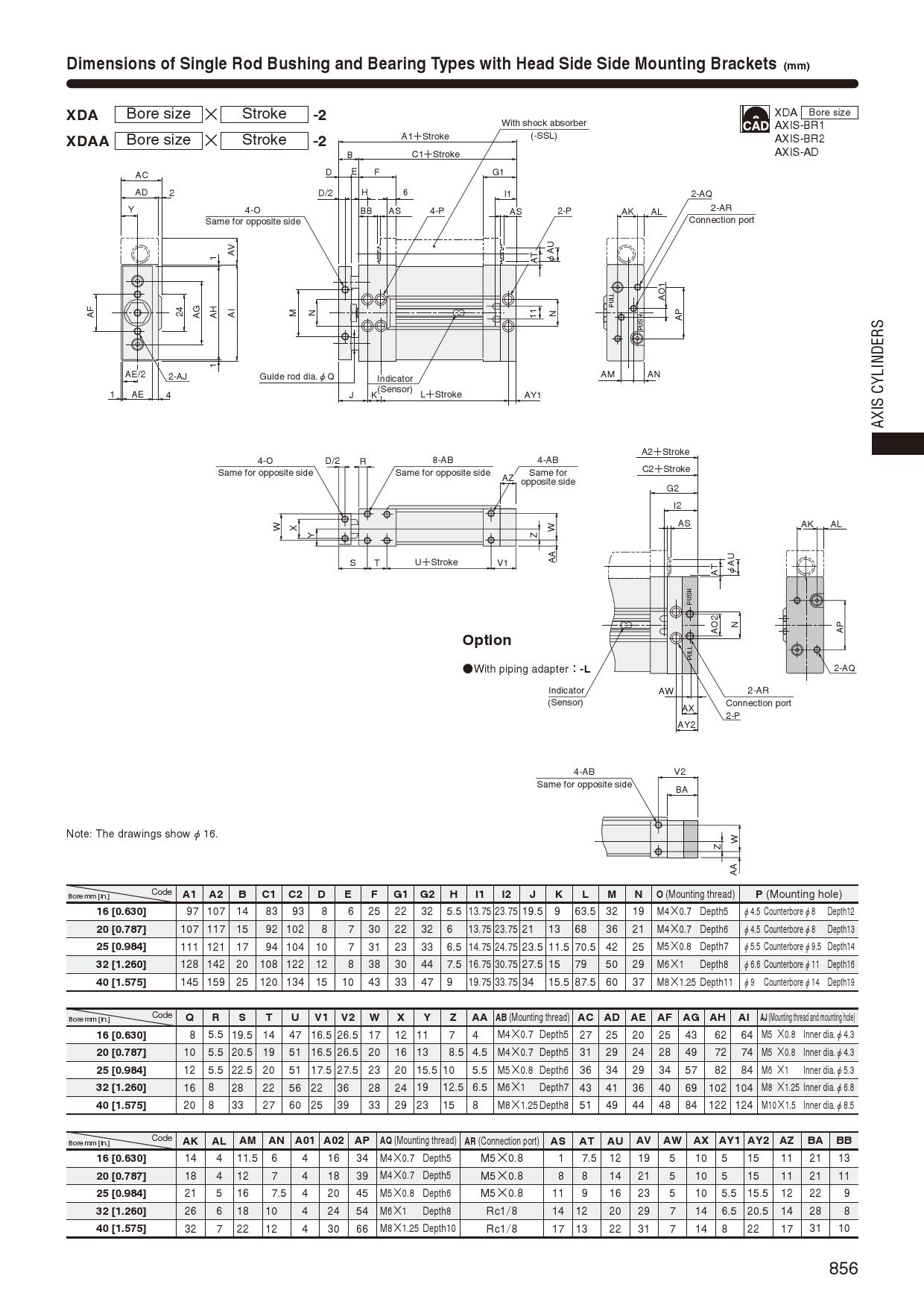
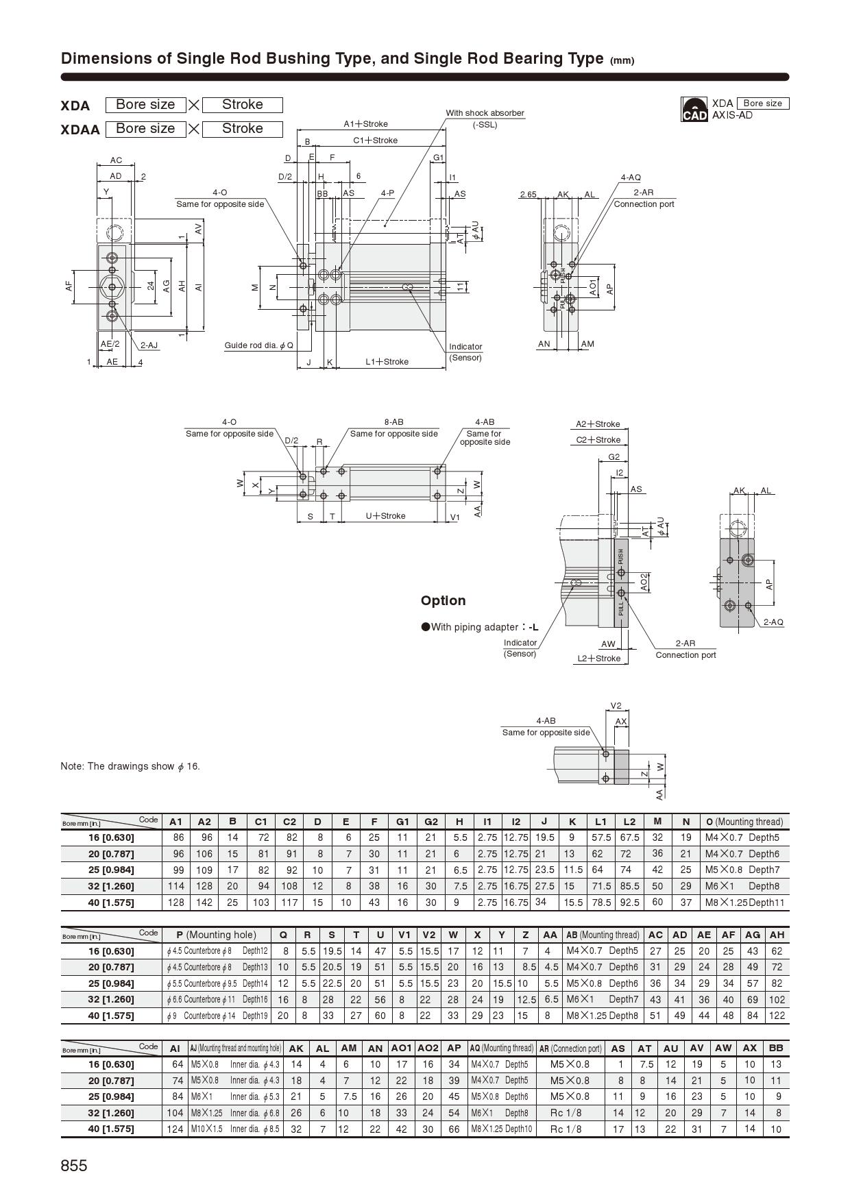
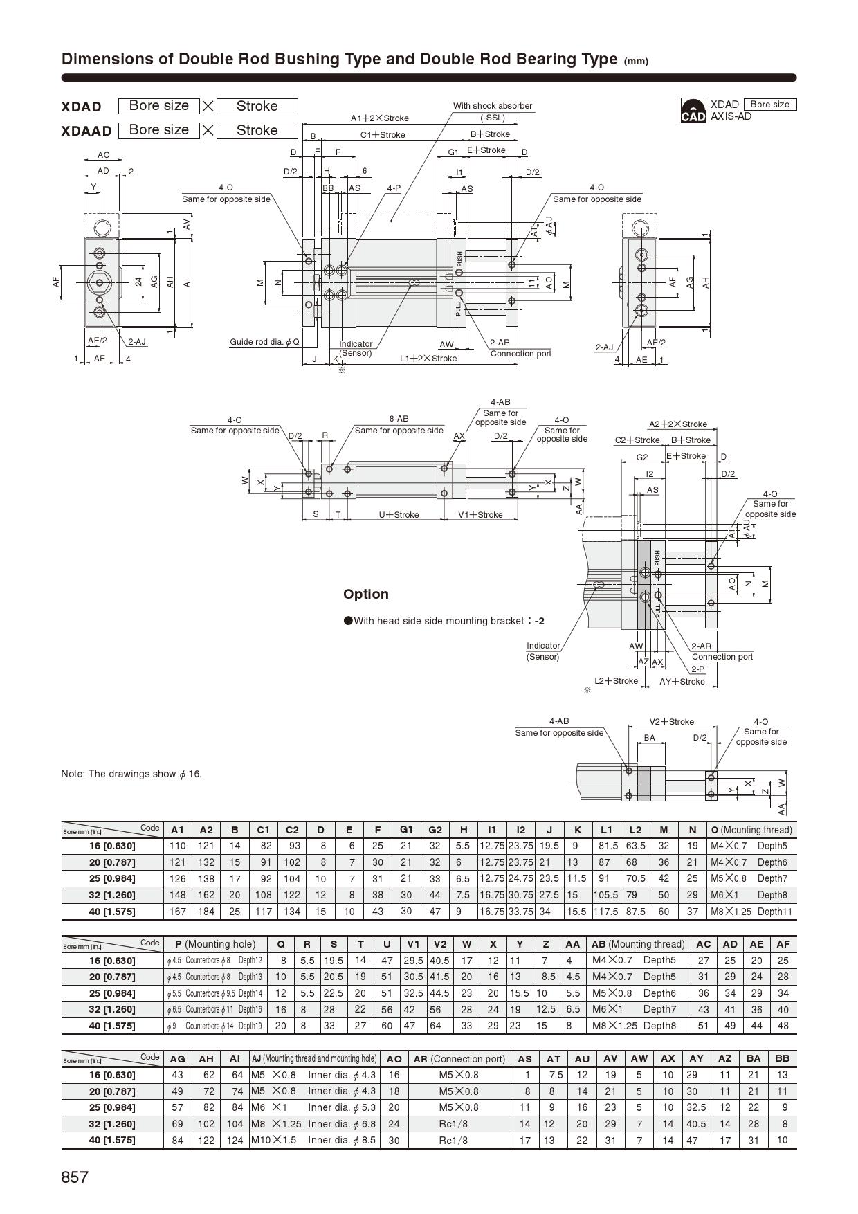
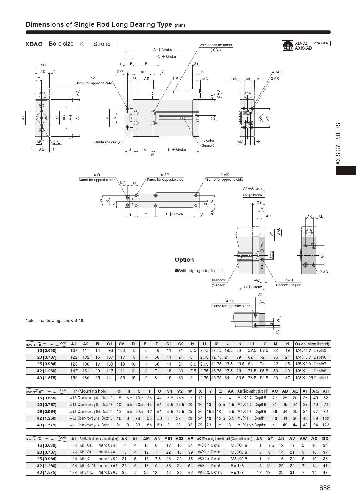
Axis,XDAA,bearing
  • Catalog
  • Spec / Format
  •  
  •  
Double acting bearing type
CAD Download