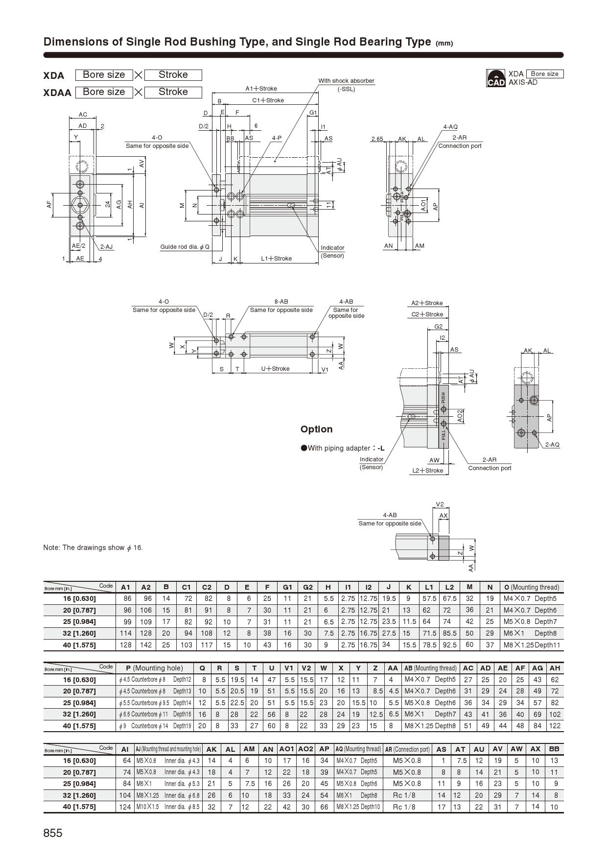
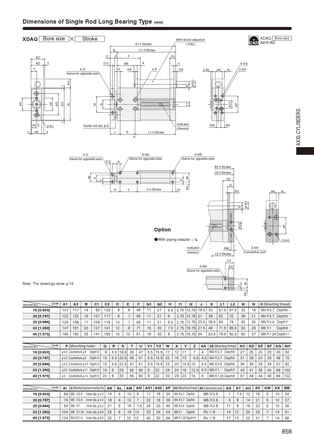
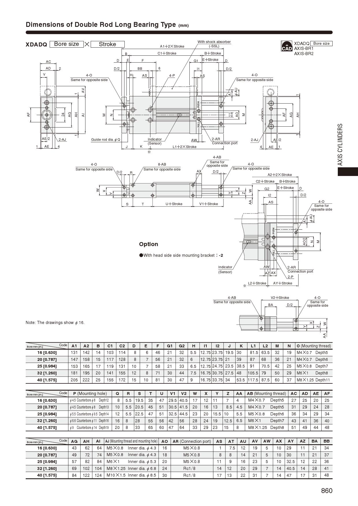
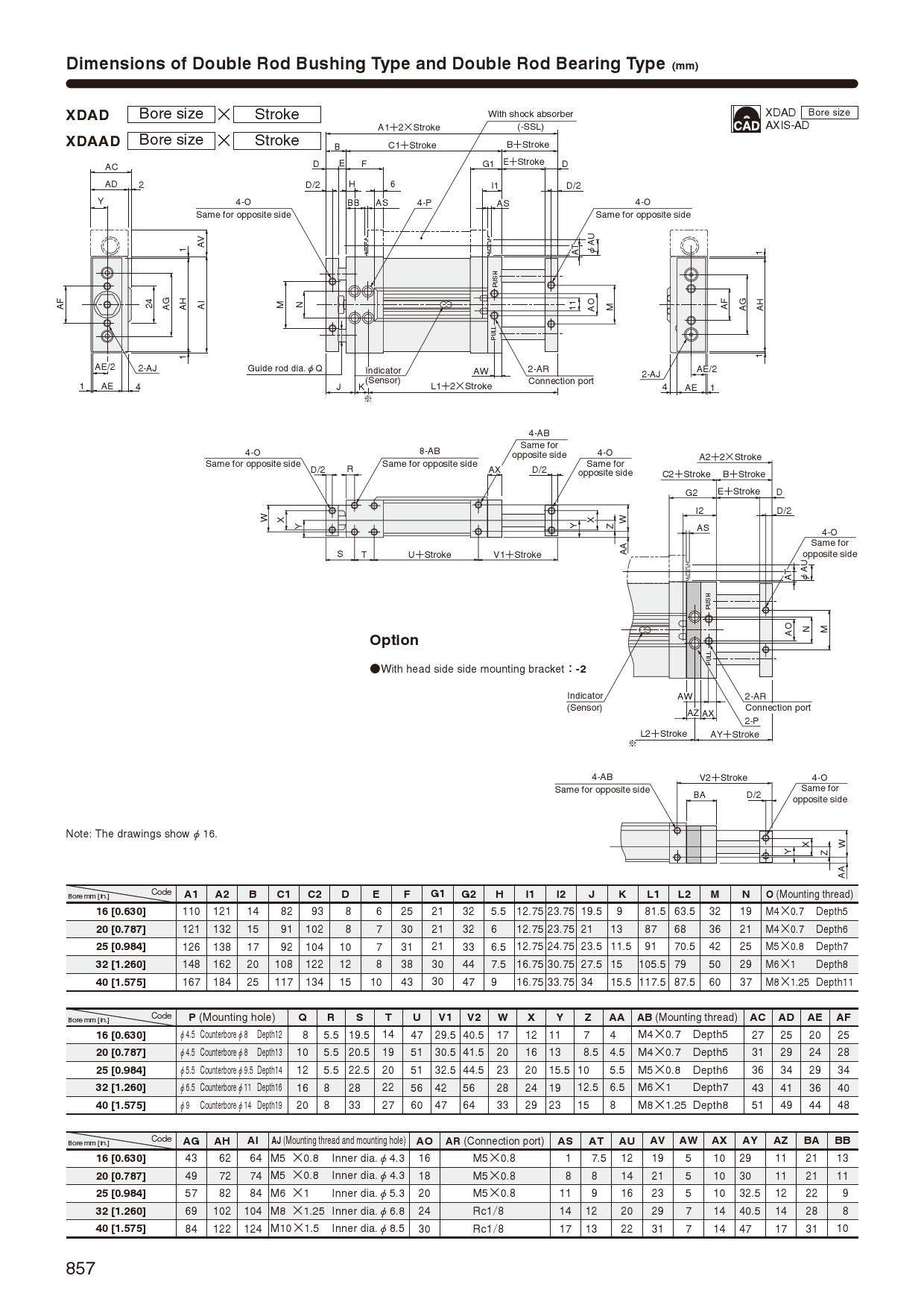
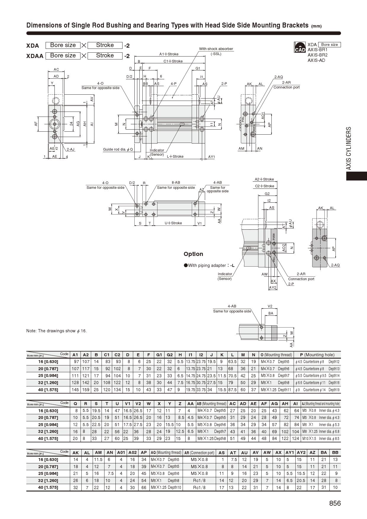
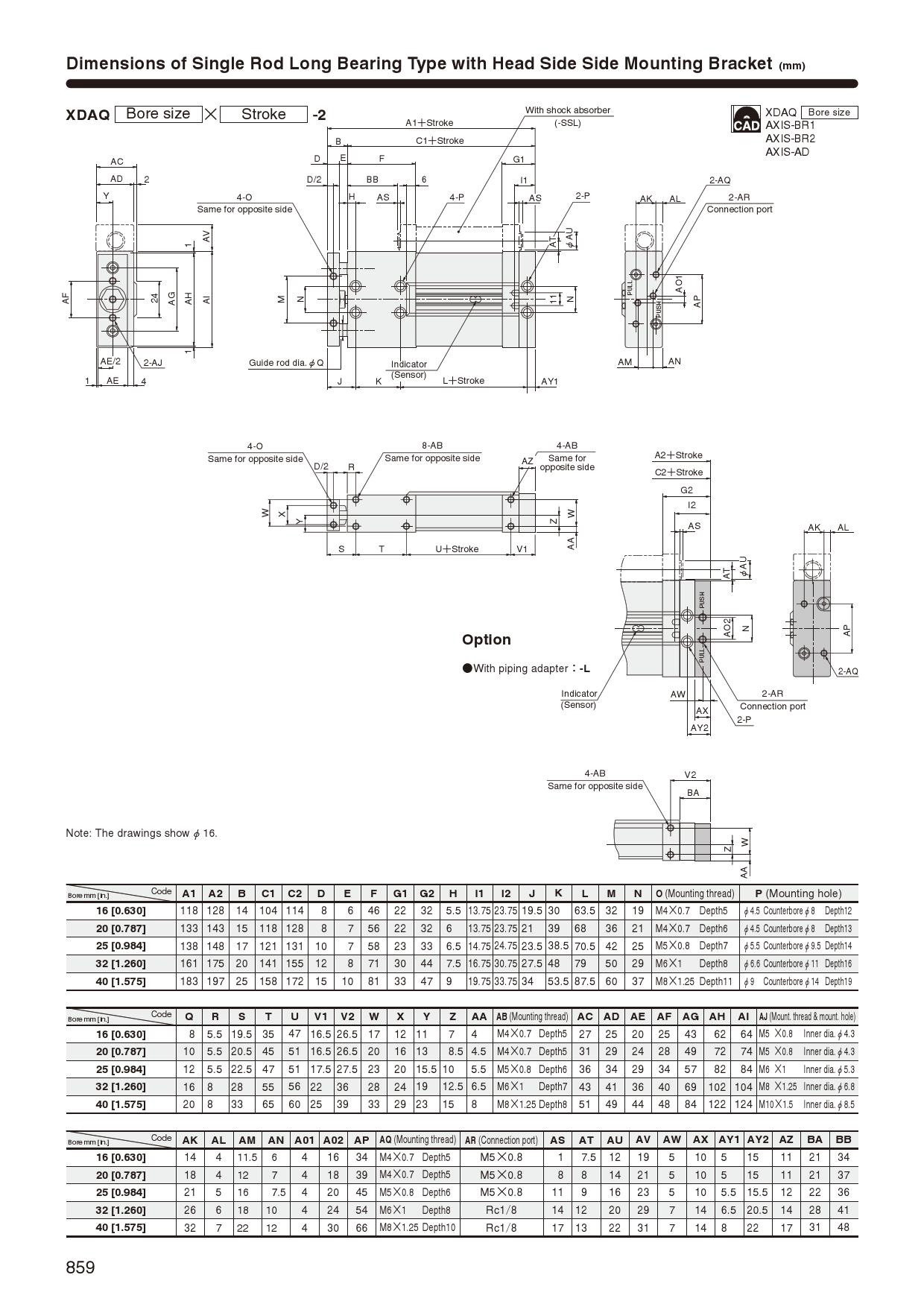
Axis,XDA,XDAA,XDAD,XDAAD,XDAQ,XDADQ
  • Catalog
  •  
  •  
  •  
Axis cylinders
CAD Download