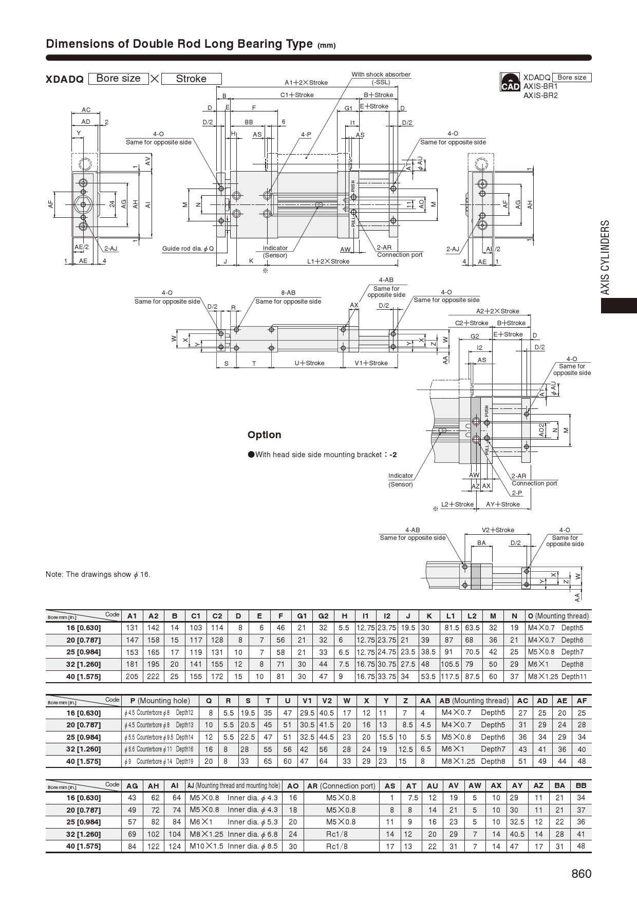
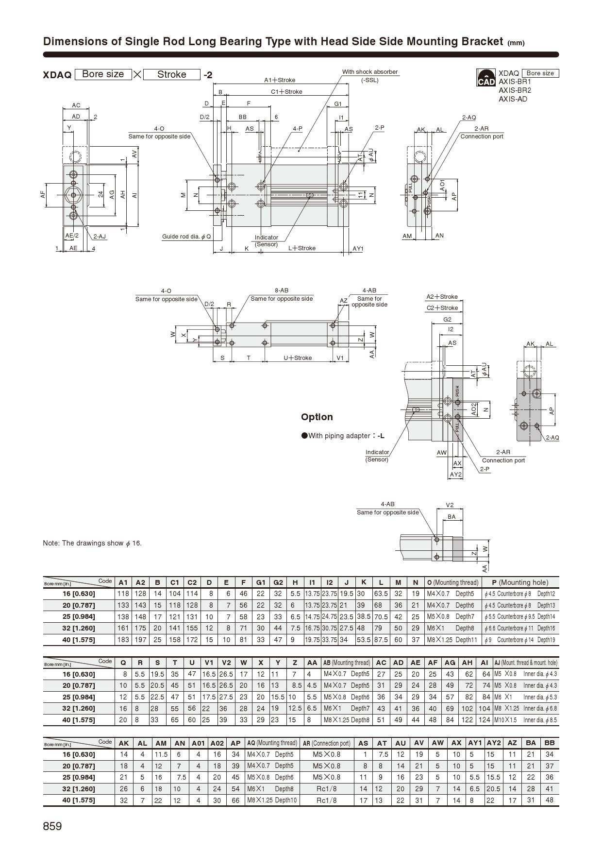
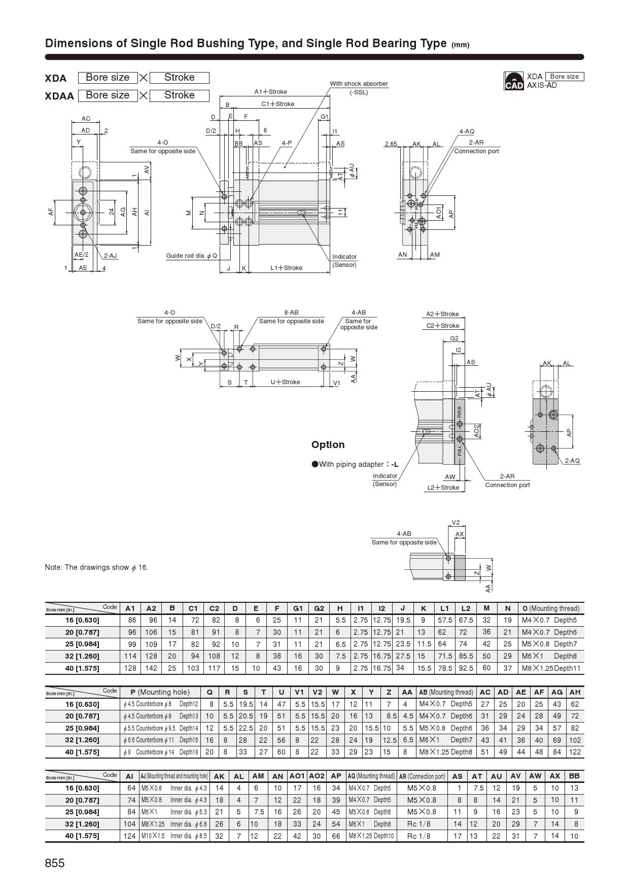
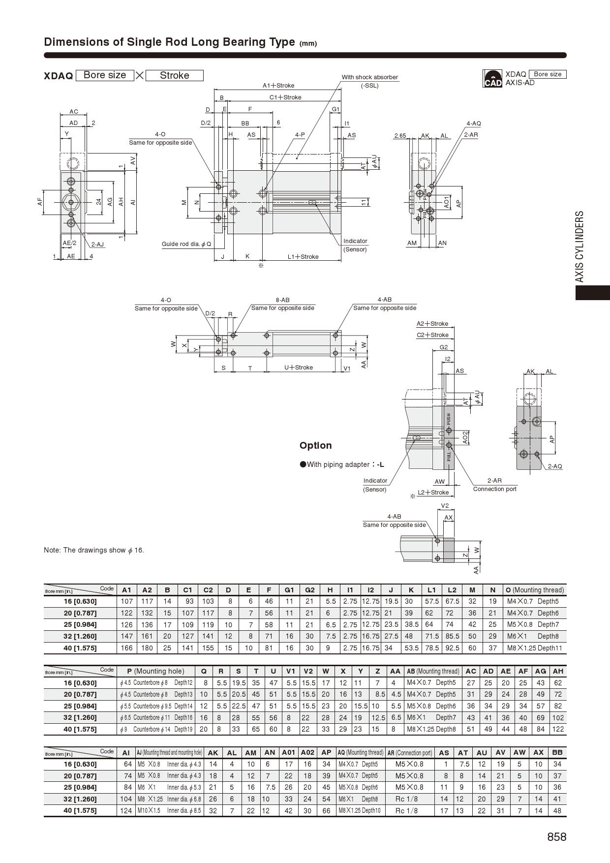
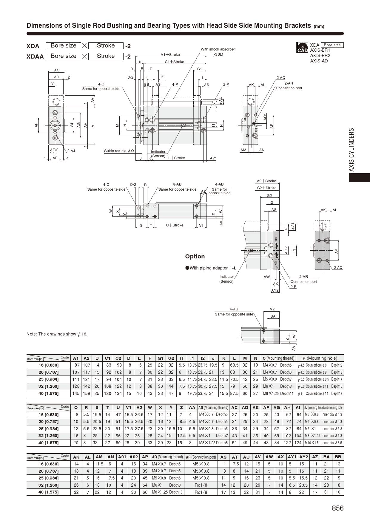
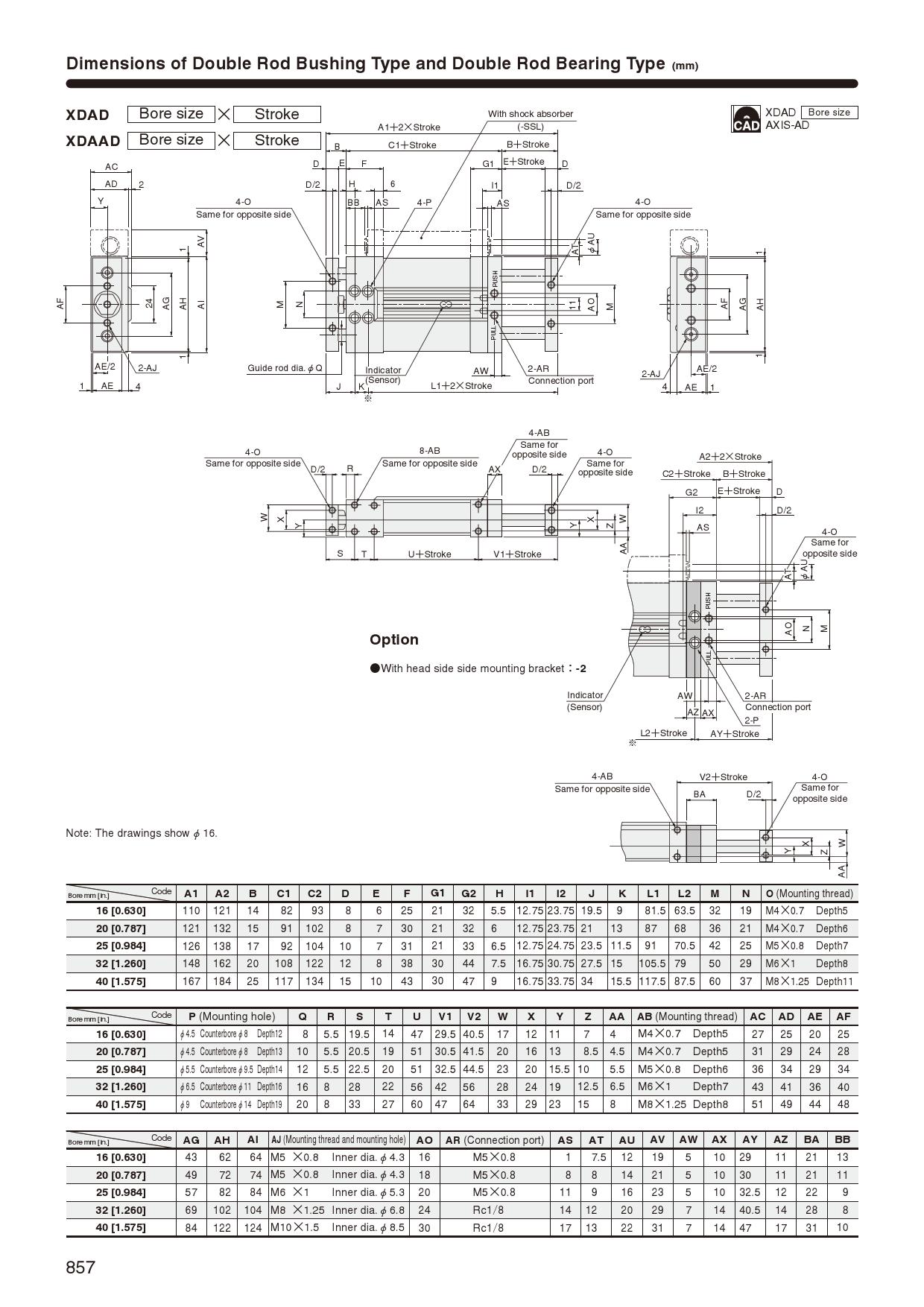
Axis,XDAQ,long bearing
  • Catalog
  • Spec / Format
  •  
  •  
Double acting long bearing type
CAD Download