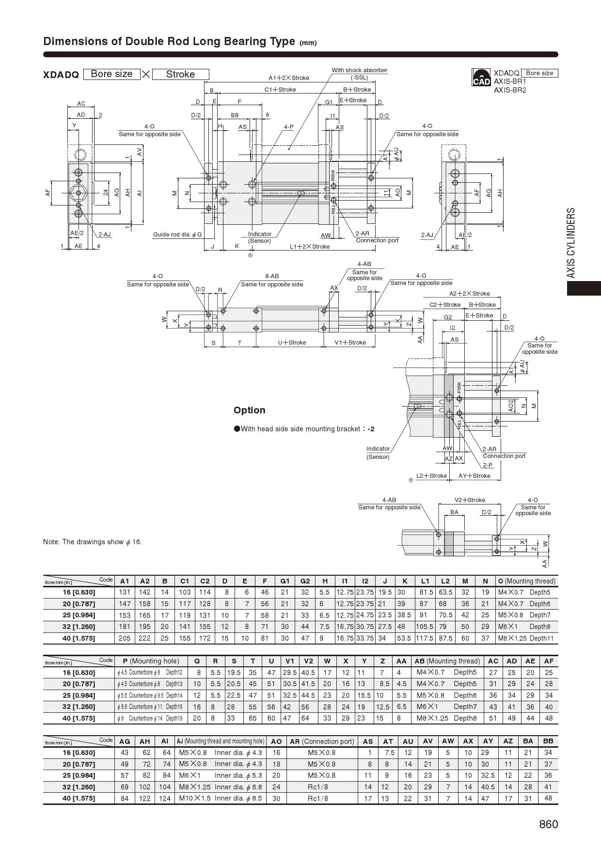
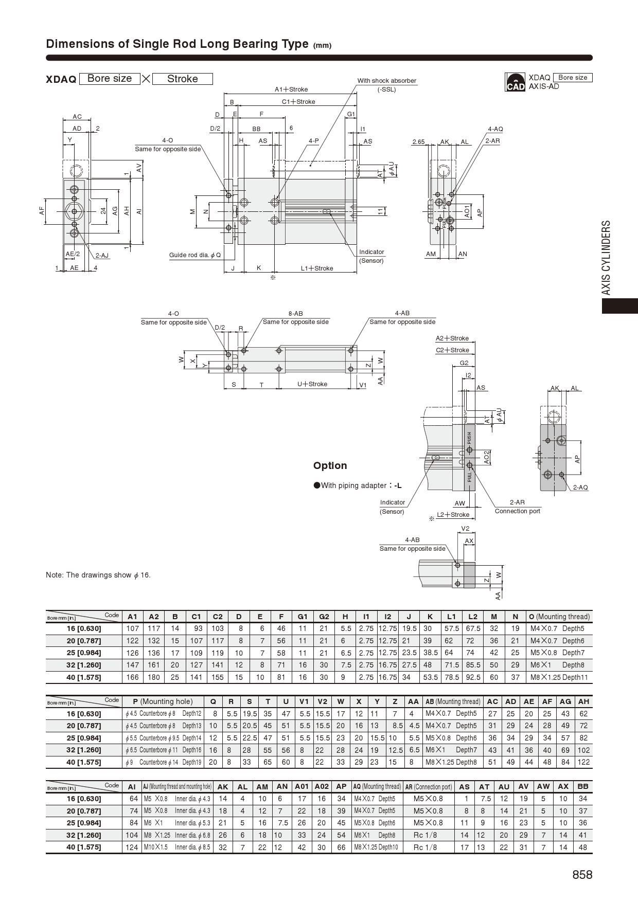
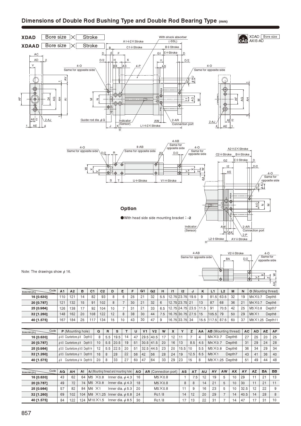
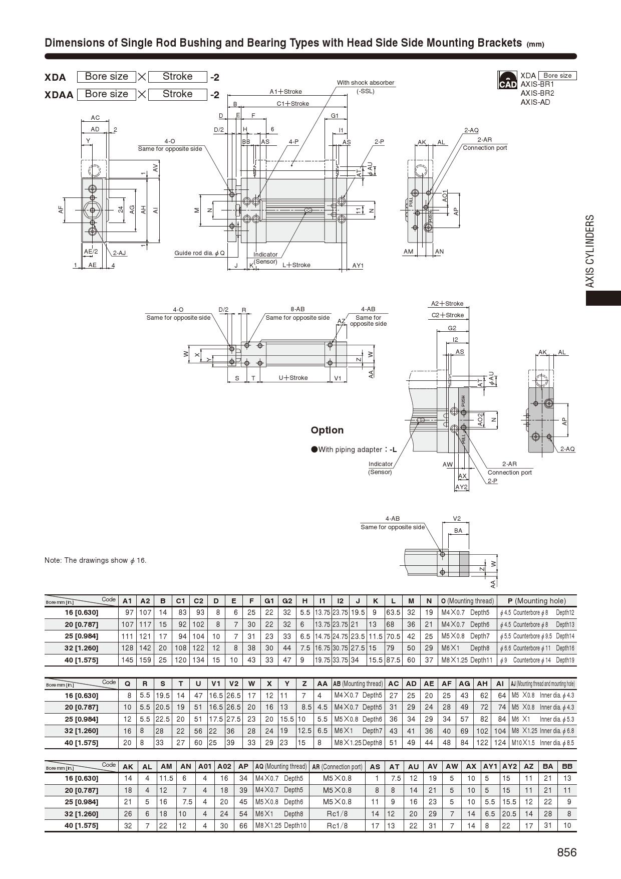
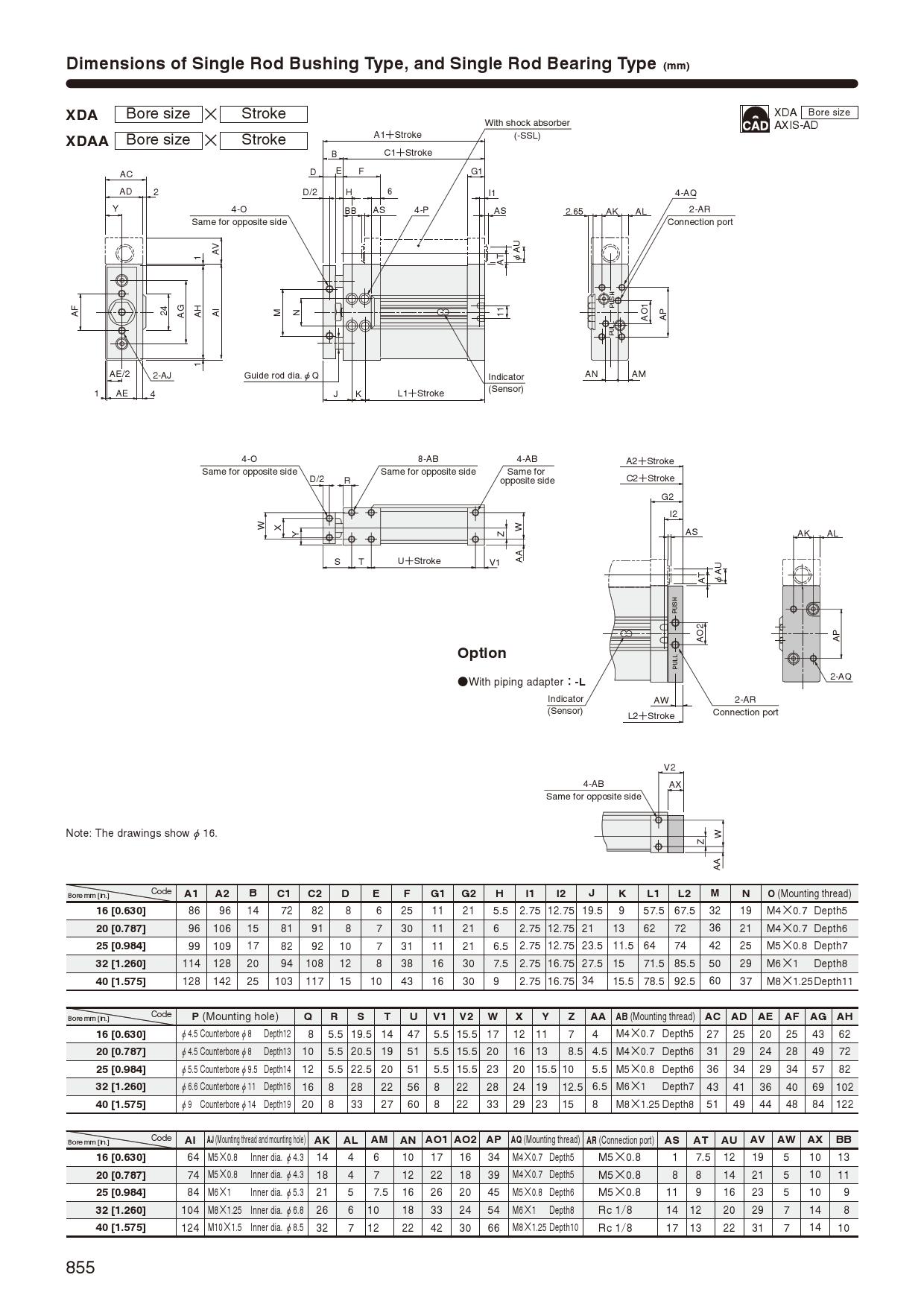
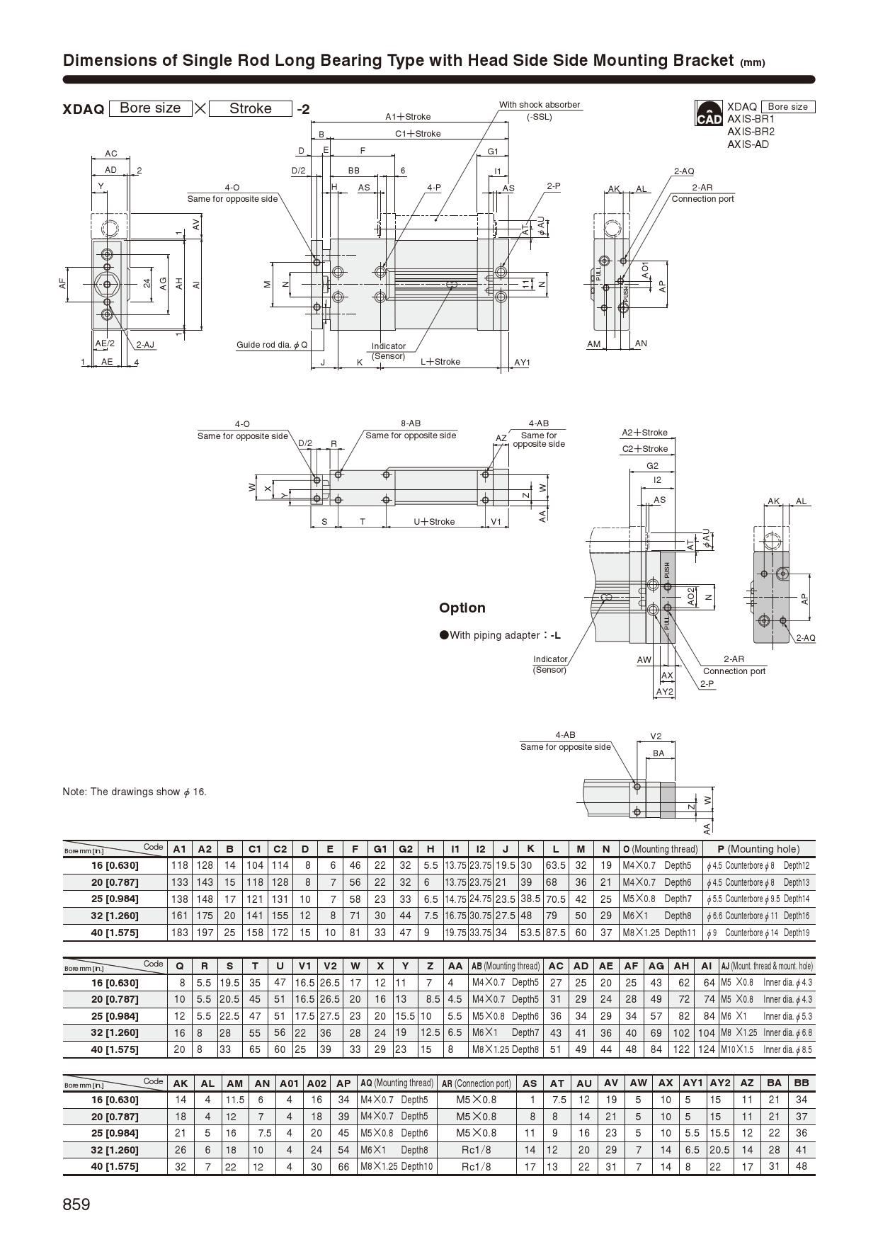
Axis,XDA,bushing
  • Catalog
  • Spec / Format
  •  
  •  
Double acting bushing type.
CAD Download