Rotary,RAT,RATS,rack-and-pinion
  • Catalog
  • Spec / Format
  •  
  •  
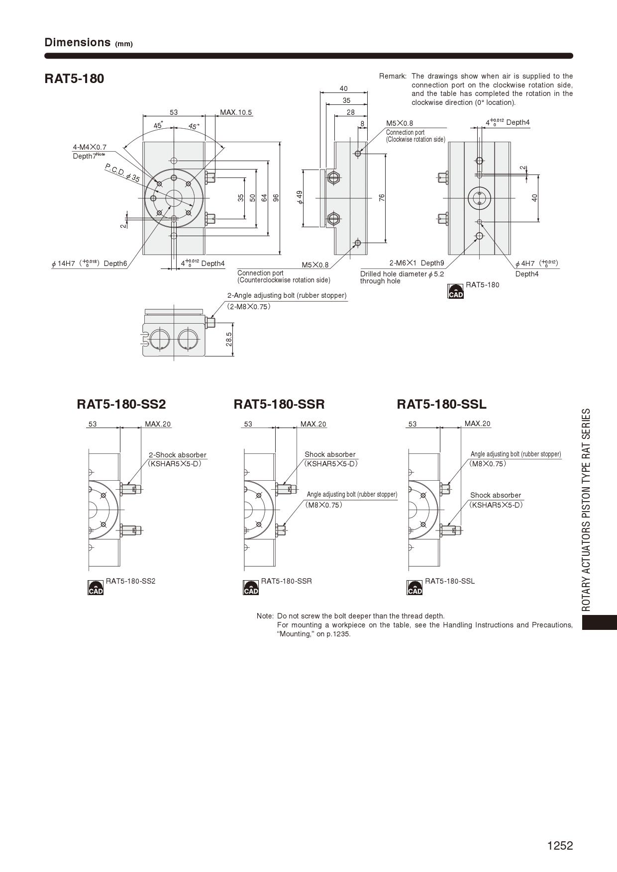
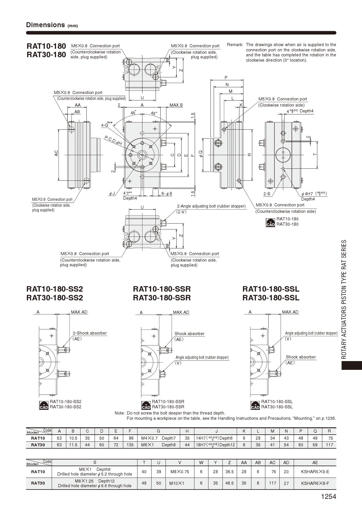
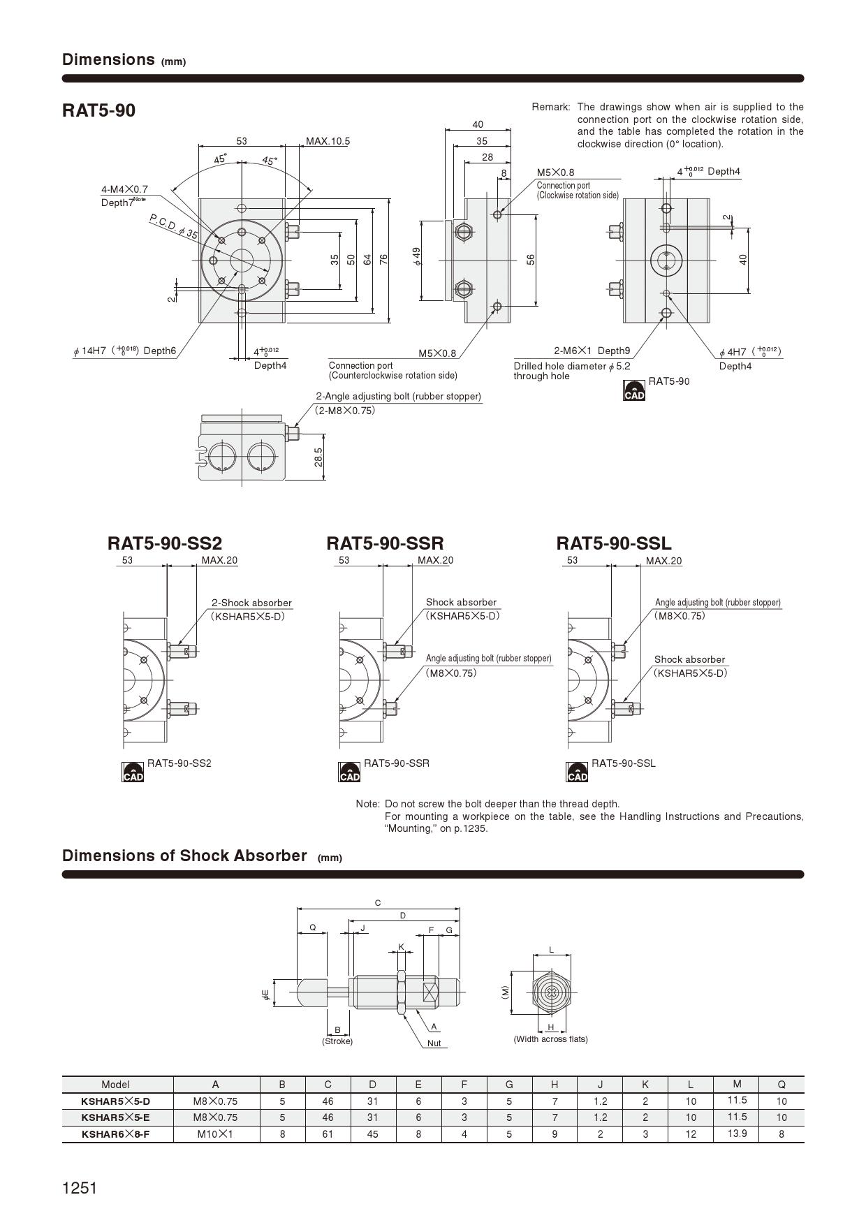
Piston type table type RAT
CAD Download