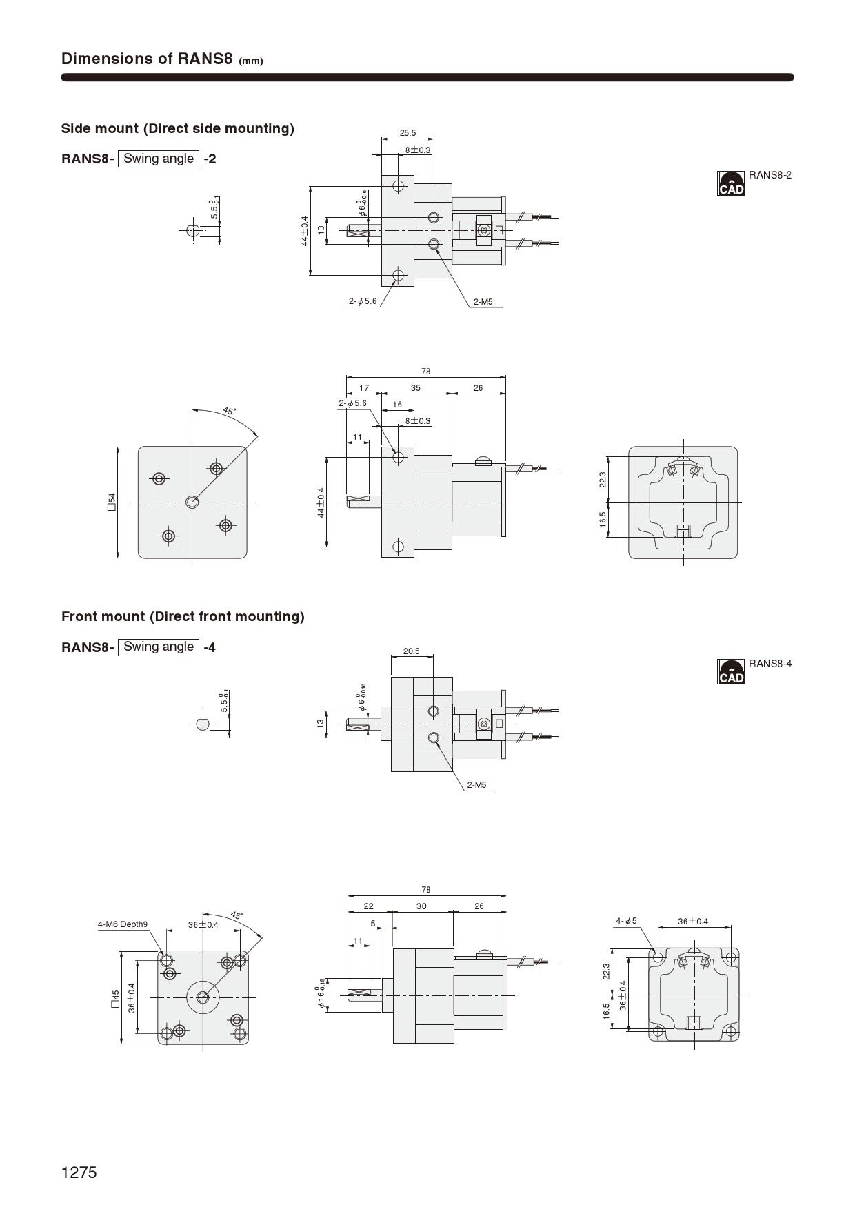
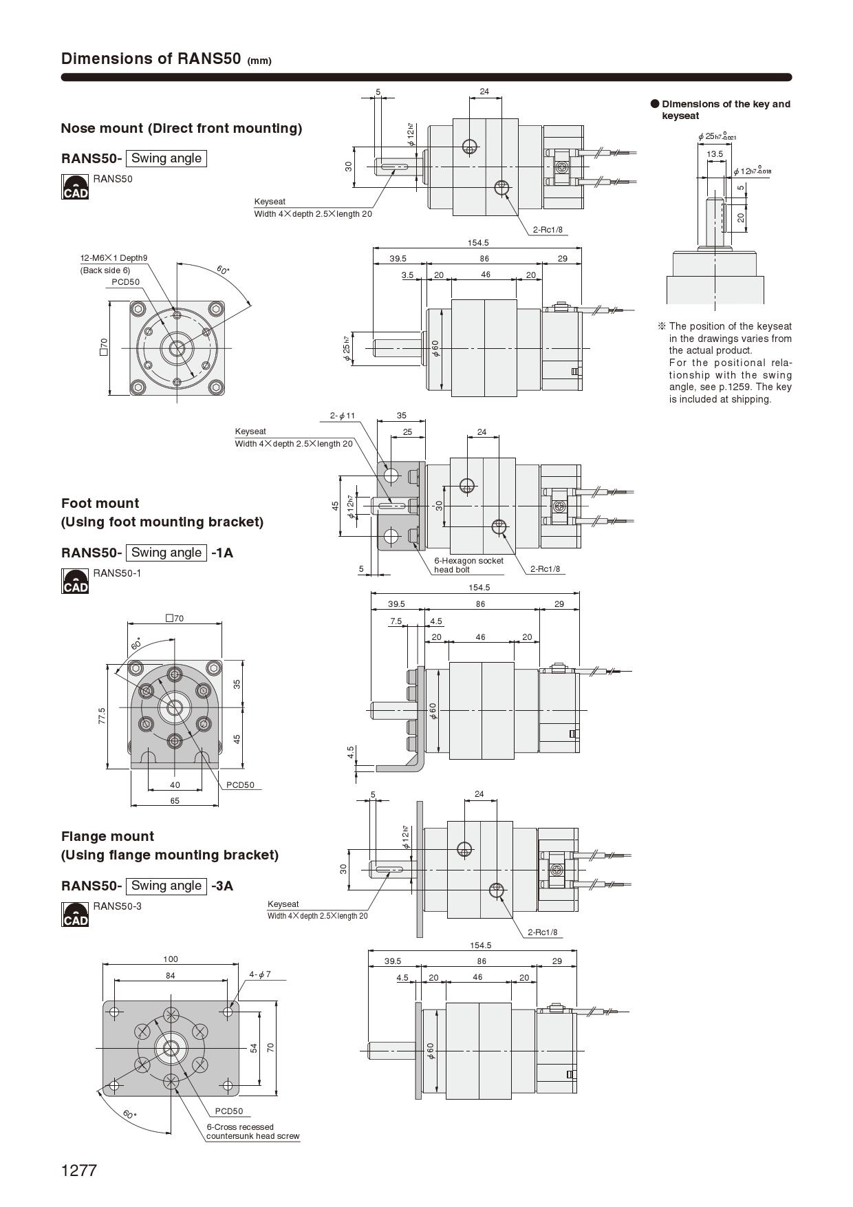
Rotary,RANS,vane type
  • Catalog
  • Spec / Format
  •  
  •  
Single vane sensor equipped type
CAD Download