High-speed,K3,K4,high-speed response
  • Catalog
  • Spec / Format
  •  
  •  
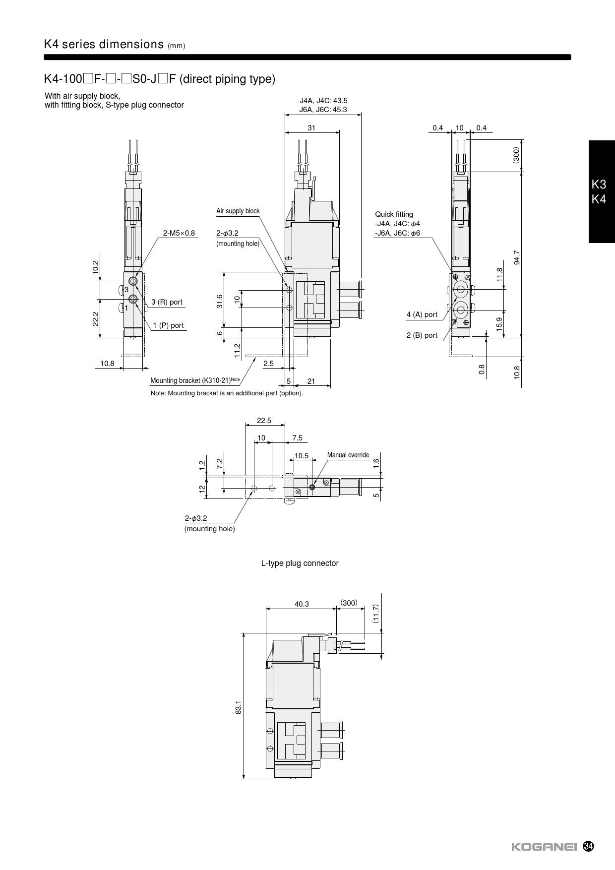
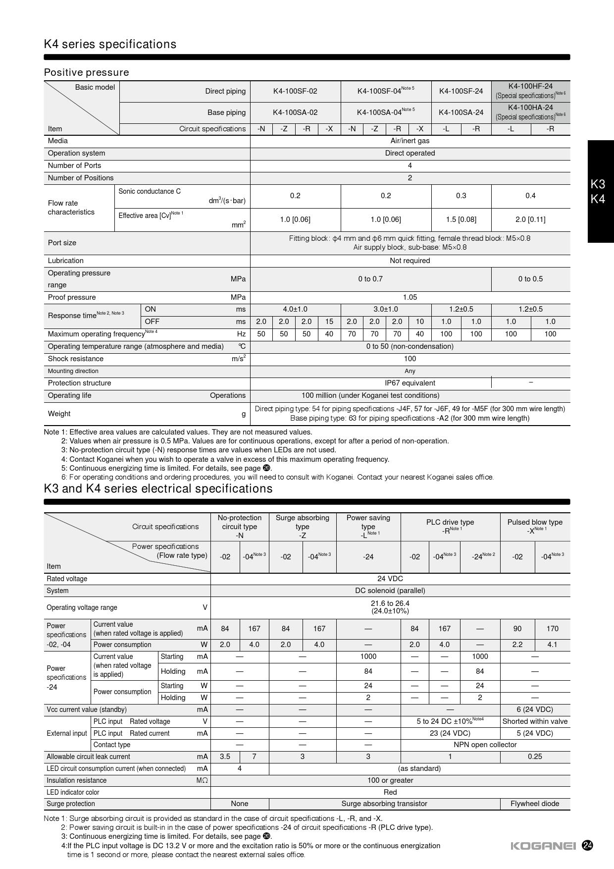
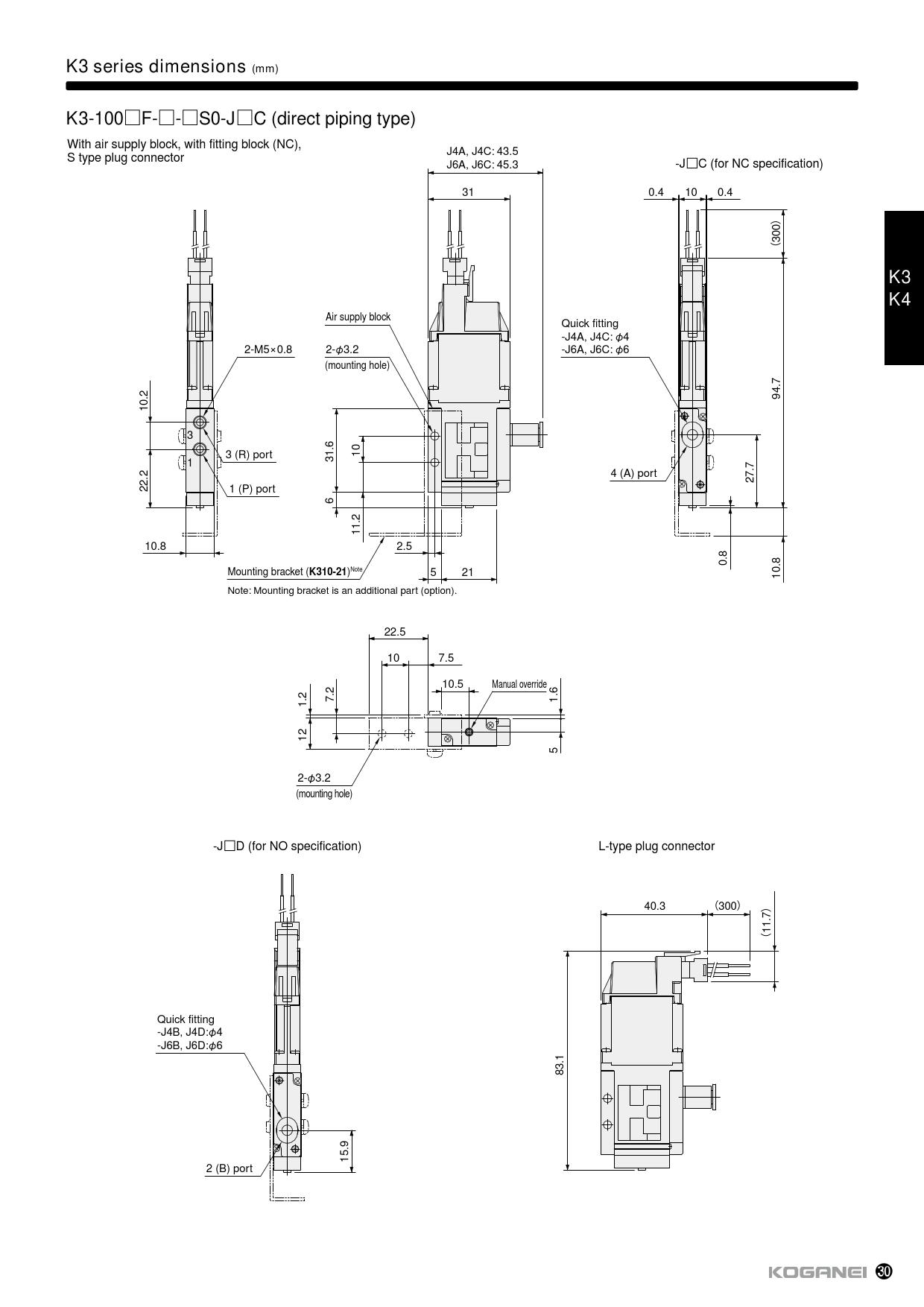
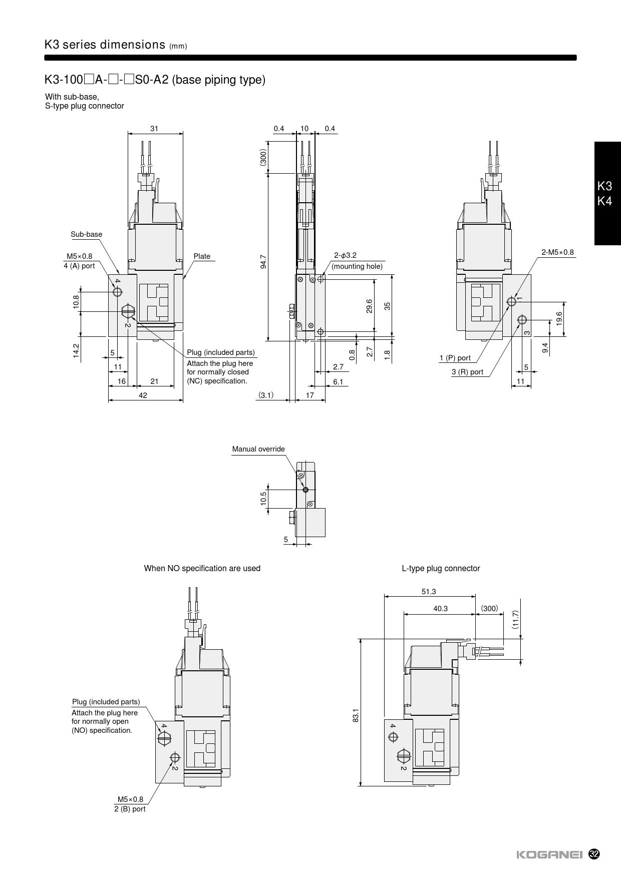
High-speed 3-, 4-port valves K3, K4
CAD Download