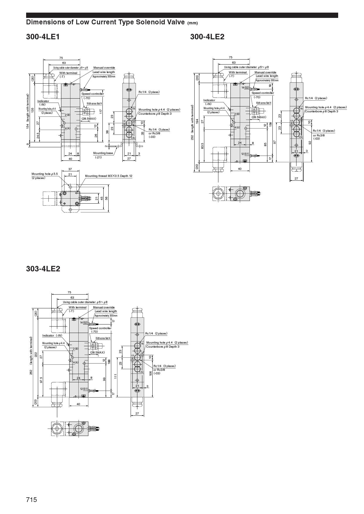
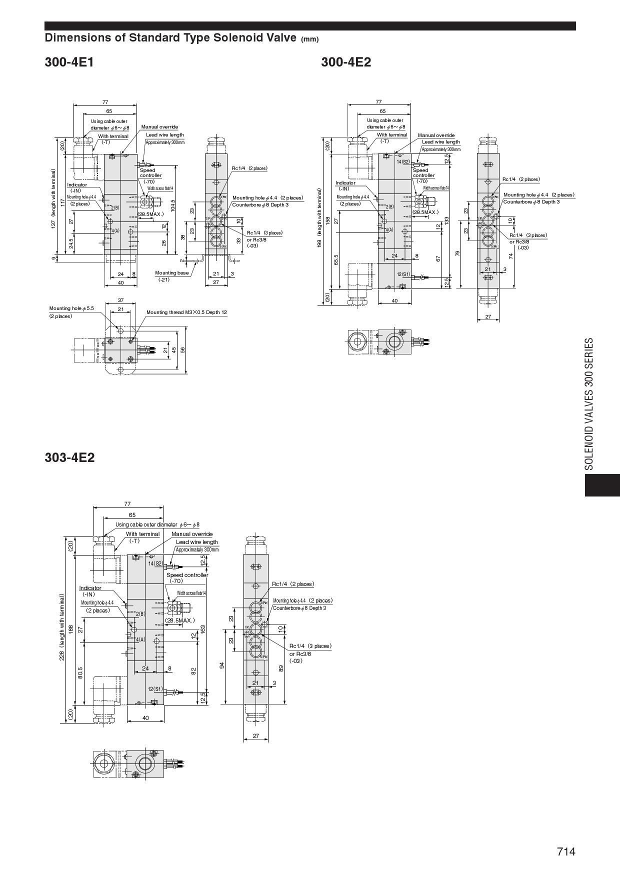
Solenoid valve 300,300,303,FM
  • Catalog
  •  
  •  
  •  
Solenoid valve 300 series
CAD Download